40,000 sqft Commercial Space – Times Square, New York
40,000 sqft commercial floor within a high-profile Manhattan building.
Project Overview
Locations
- 640 8th Avenue, New York, NY
Building Type
- Commercial Office Space
Approximate Size
- 40,000 sqft
GeoMaus delivered full existing conditions documentation to support leasing and redevelopment.
The Challenge
- Strict security and controlled access
- Multiple stakeholder coordination
- Time-sensitive delivery
- Limited working-hour access
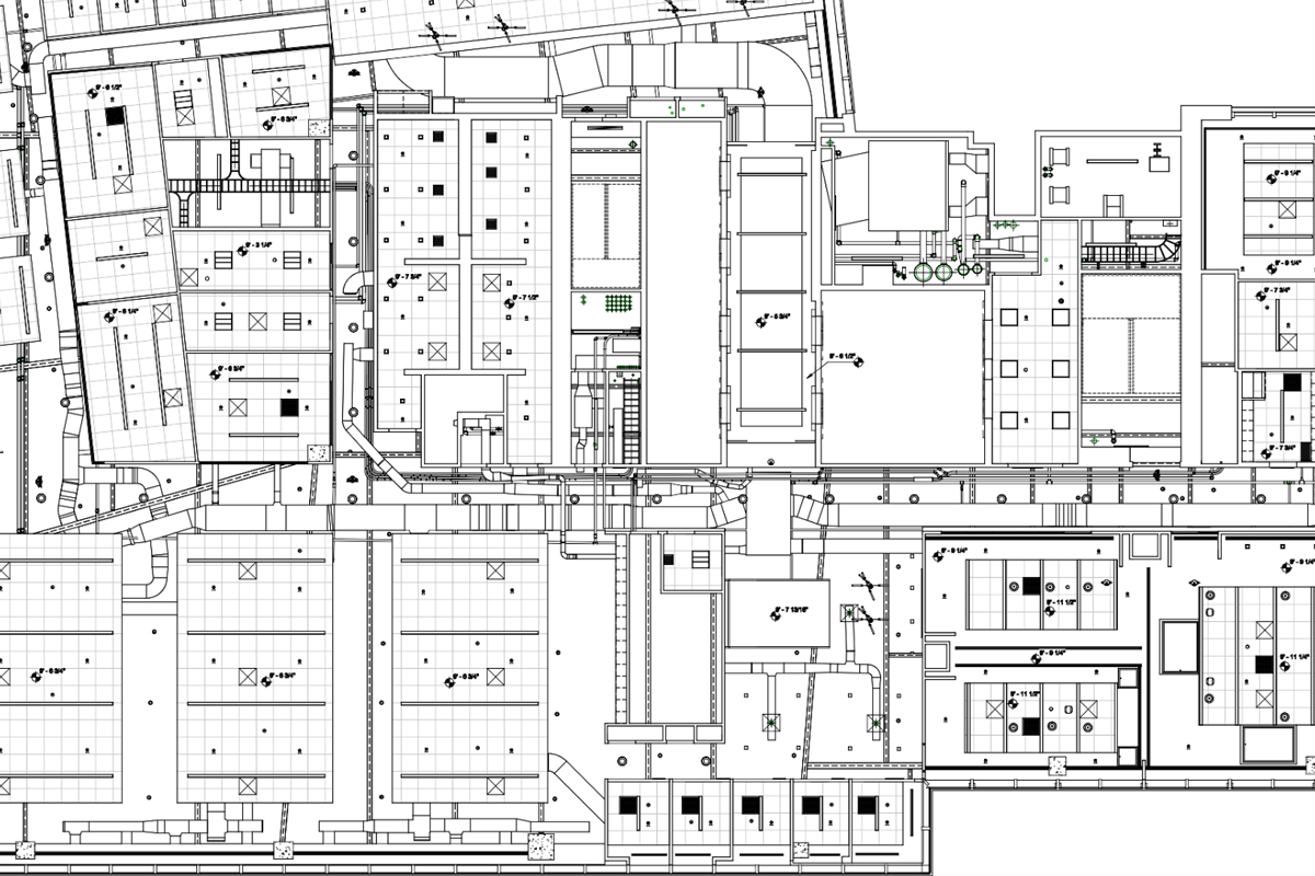
Scope of Work
- Full measured as-built survey
- LOD300 Revit model
- CAD floor and ceiling plans
- MEP and structural layouts
Outcome
Accurate documentation reduced redevelopment risk and enabled rapid progression toward tenant occupancy.